歡迎來到北京中力創業機電設備有限公司
全國統一谘詢熱線:
English
 

德國卡吉斯鼓風式鑄鐵鍋爐太陽係列

 

卡吉斯鼓風式鑄鐵鍋爐太陽係列

 

  產地:希臘

  結構:落地式

  燃料:燃油、燃氣

  燃燒方式:鼓風式

  熱效率:94%

  產品類別:家用、商用型模塊熱水鍋爐

  工作壓力:0.6MPa—0.8MPa

  功率範圍:24-84KW

  適用範圍:商業、高層住宅、獨棟別墅、賓館、學校、醫院、辦公樓等。

 

  詳細介紹:

  SUN太陽係列
  
  (熱功率24~84KW)
  
  ◇鍋爐最高出水溫度110℃,最大允許工作壓力0.6Mpa
  
  ◇爐片厚度5.5mm
  
  ◇爐門內襯50mm厚的優質絕熱陶瓷纖維
  
  ◇爐體保溫采用厚度為50mm的玻璃纖維棉

卡吉斯鼓風式鑄鐵鍋爐太陽係列

型號

SND2

SND3

SND4

SND5

SND6

SND7

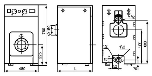
外殼長度L(mm)

380

480

580

680

780

880

煙道出口尺寸(mm)

150

150

150

150

150

150

  爐門內襯有50mm厚的由優質陶瓷纖維製成的防火內襯。其餘鍋爐表麵用50mm厚的玻璃纖維做絕熱保溫。
  
  控製麵板上設有:燃燒器溫度控製器及運行指示燈,循環泵溫度控製器及指示燈,燃燒器溫度控製器保險絲,水溫控製器,廢氣溫度控製器及“通-斷”電源開關。
  
  EMMANUELN.KAZISS.A.公司生產的鑄鐵鍋爐可用於中央供暖係統;其現代化的設計、嚴格的測試使KAZIS鍋爐經久耐用,熱效率符合德國DIN標準和歐盟EN標準:
  
  太陽係列鍋爐的設計符合歐洲92/42EC標準,並標有CE標誌。EN304、EN303-1、EN303-2、EN303-3標準。
  
  所有鍋爐的效率均符合歐洲EN304、EN303-1、EN303-2、EN303-3標準。汙染物及煙氣排放量符合所有歐洲環境標準及EN303-2、EN267標準。所有鍋爐的設計均符合DIN4702標準。鑄鐵GG20符合DIN1691標準。
  
  E.N.Kazis公司的組裝加工廠及鑄造工廠於2000年通過TUV質量認證體係認證,獲得ENISO9001認證證書。
  
  技術參數

型號

供熱量

KW

熱效率

%

燃料消耗量

燃燒室

背壓

mmH2O

爐體

長度

mm

排煙口

直徑

mm

水容積

L

運輸

重量

Kg

天然氣

Nm3/h

液化氣

Kg/h

燃油

Kg/h

SND2

24.42

94.10

2.59

2.07

2.19

2

380

150

9.0

92

SND3

37.22

93.90

3.95

3.16

3.34

3

480

150

12.3

119

SND4

48.85

94.20

5.19

4.13

4.37

4

580

150

16.0

145

SND5

60.47

94.00

6.42

5.12

5.42

5.5

680

150

19.5

173

SND6

72.11

94.50

7.65

6.08

6.43

7.5

780

150

23.0

200

SND7

83.74

94.60

8.89

7.05

7.46

8

880

150

25.5

227

主要尺寸

卡吉斯鼓風式鑄鐵鍋爐太陽係列

  爐門內襯有50mm厚的由優質陶瓷纖維製成的防火內襯。
  
  其餘鍋爐表麵用50mm厚的玻璃纖維做絕熱保溫。
  
  控製麵板上設有:燃燒器溫度控製器及運行指示燈,循環泵溫度控製器及指示燈,燃燒器溫度控製器保險絲,水溫控製器,廢氣溫度控製器及“通-斷”電源開關。

上一篇:德國卡吉斯鼓風式鑄鐵鍋爐銀河係列

下一篇:沒有了

TAG: 熱水鍋爐  鑄鐵鍋爐  

更多相關內容
網站首頁 |  鍋爐產品 |  供暖服務 |  中創簡介 |  鍋爐資訊 |  行業動態 |  公司新聞 |  聯係我們 |  網站地圖

座機:86-10-59625220/21/23/26/27/29

傳真:86-10-59625221-1162

郵編:100022

郵箱:

地址:北京市東四環中路78號大成國際中心二號樓A709室

  • 中創服務號